情報更新日:2025年11月07日/広告有効期限:2025年12月31日
表示閲覧回数(過去30日間):38
お急ぎの方はお電話からお気軽にどうぞ!
086-230-5667 営業時間 / 10:00~18:00 定休日 / 日・祝
>物件詳細情報
| 基本情報 | |
|---|---|
| 物件番号 | 10007805242 |
| 店舗形態 | 事務所 |
| オススメ業種 | 事務所 |
| 物件名 | シティランドビル |
| 物件の状態 | 空き |
| 引越し時期 | 相談 |
| 契約形態と期間 |
普通契約期間:2年間 |
| 所在地・交通 | |
|---|---|
| 所在地 | 岡山県岡山市北区今1-11-9 |
| 交 通1 | 山陽本線北長瀬駅 徒歩10分 |
| 交 通2 | - |
| 賃料 | |
|---|---|
| 賃 料 | 211,750円(税込) |
| 敷 金 |
4ヶ月 |
| 共益費・管理費 | 38,115円(税込) |
| その他月額費用 1 | 冷暖房設備 42,350円(税込) |
| 精算方法 | 実費 |
| 礼 金 | 1ヶ月 |
| その他 | |
|---|---|
| 備考 | |
| 建物 | |
|---|---|
| 建物構造 | 鉄骨造 |
| 建物階建て |
地上2階 |
| 施工年月 | 1992(平成4)年 |
| 募集物件の階数 | 地上 2階 |
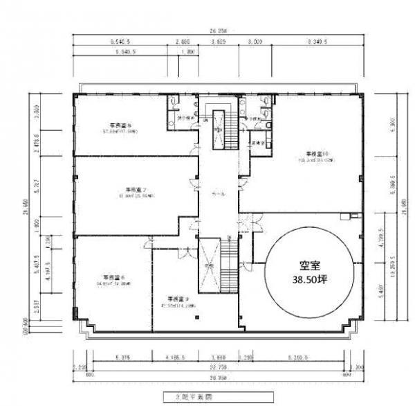
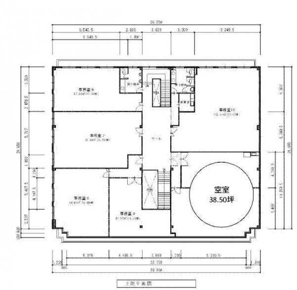
| 契約面積 | 127.27m2(38.50坪) |
| 設備 | |
|---|---|
| 水道 | 公営 |
| 下水道 | 公共下水 |
| トイレ | 有/共用 |
| 給湯室 | 有/共用 |
| 床仕様 | CFシート |
| 利用時間 | 時間制限有 |
| 駐車場 | |
|---|---|
| 状 況 | 空有 |
| 駐車料金 | 5,500円(税込) |
| 空き台数 | 4台 |
| 取引情報 | |
|---|---|
| 取引態様 | 媒介 |
| 客付 | 不可 |
この物件をチェックした人はこんな物件も見ています
- 大元駅まで500Mの利便性の高い場所に位置する物件です。2F16.5坪!!ぜひ一度お問合せください。

岡山県岡山市北区西古松1-12-1
54.55m2(16.50坪)
90,750円(税込)
- 交通アクセスの良い岡山市の副都心、今地区のオフィス街で2階の広い好物件が登場。大変おすすめです。

岡山県岡山市北区今1-11-9
118.02m2(35.70坪)
196,350円(税込)
- JR山陽本線、岡山駅から徒歩約16分。表町商店街と中山下通りなどの商店街、オフィス街に位置するテナントビルです。詳細などお気軽にお問合せください。

岡山県岡山市北区中山下2-2-1
265.92m2(80.44坪)
440,000円(税込)
- JR山陽本線、岡山駅から徒歩約16分。表町商店街と中山下通りなどの商店街、オフィス街に位置するテナントビルです。詳細などお気軽にお問合せください。

岡山県岡山市北区中山下2-2-1
289.42m2(87.55坪)
478,500円(税込)
- 駐車場付きロードサイド事務所です。接道からの視認性が高く販促効果第です。近隣にはコンビニ、ドラッグストア、スーパーなど利便性の高い施設が多数あり大変おススメの物件です。内覧はいつでも可能ですのでお気軽にお問い合わせください。

岡山県岡山市中区藤原西町2-8-26
143.02m2(43.26坪)
249,700円(税込)
今日チェックした物件
お急ぎの方はお電話からお気軽にどうぞ!
086-230-5667 営業時間 / 10:00~18:00 定休日 / 日・祝

086-230-5667















086-230-5667