情報更新日:2025年11月05日/広告有効期限:2025年12月31日
表示閲覧回数(過去30日間):19
お急ぎの方はお電話からお気軽にどうぞ!
086-230-5667 営業時間 / 10:00~18:00 定休日 / 日・祝
>物件詳細情報
| 基本情報 | |
|---|---|
| 物件番号 | 10007805544 |
| 店舗形態 | 事務所, 店舗 |
| オススメ業種 | 事務所, サービス業 |
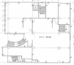
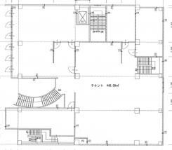
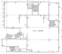
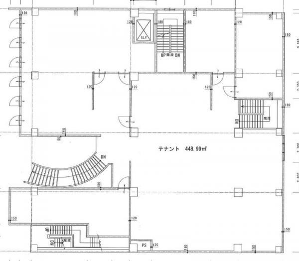
| 物件名 | 栄光ビル2F |
| 物件の状態 | 空き |
| 引越し時期 | 即 |
| 契約形態と期間 | |
| 所在地・交通 | |
|---|---|
| 所在地 | 岡山県岡山市北区表町3-11-73 |
| 交 通1 | 山陽本線岡山駅 徒歩25分 |
| 交 通2 | - |
| 賃料 | |
|---|---|
| 賃 料 | 746,900円(税込) |
| 敷 金 |
3ヶ月 |
| 礼 金 | 1ヶ月 |
| その他 | |
|---|---|
| 備考 | |
| 建物 | |
|---|---|
| 建物構造 | 鉄筋コンクリート造 |
| 建物階建て |
地上9階 |
| 施工年月 | 1984(昭和59)年 01月 |
| 募集物件の階数 | 地上 2階 |
| 契約面積 | 448.99m2(135.82坪) |
| 駐車場 | |
|---|---|
| 状 況 | 無し |
| 取引情報 | |
|---|---|
| 取引態様 | 媒介 |
| 客付 | 不可 |
この物件をチェックした人はこんな物件も見ています
- 交通アクセスの良い岡山市の副都心、今地区のオフィス街で2階の広い好物件が登場。大変おすすめです。

岡山県岡山市北区今1-11-9
118.02m2(35.70坪)
196,350円(税込)
- 交通アクセスの良い岡山市の副都心、今地区のオフィス街で2階の広い好物件が登場。大変おすすめです。

岡山県岡山市北区今1-11-9
127.27m2(38.50坪)
211,750円(税込)
- 大元駅まで500Mの利便性の高い場所に位置する物件です。2F16.5坪!!ぜひ一度お問合せください。

岡山県岡山市北区西古松1-12-1
54.55m2(16.50坪)
90,750円(税込)
- 立地の良いテナント人気エリア!1階でとても便利な25.64坪の物件に空きが出ました!

岡山県岡山市北区今6-19-8
84.76m2(25.64坪)
141,020円(税込)
- 駐車場付きロードサイド事務所です。接道からの視認性が高く販促効果第です。近隣にはコンビニ、ドラッグストア、スーパーなど利便性の高い施設が多数あり大変おススメの物件です。内覧はいつでも可能ですのでお気軽にお問い合わせください。

岡山県岡山市中区藤原西町2-8-26
143.02m2(43.26坪)
249,700円(税込)
今日チェックした物件
- JR山陽本線、岡山駅から徒歩約18分。岡山の繁華街で2Fの空テナントがでました。バー、スナックをご開業されたい方におススメの物件です。
-

岡山県岡山市北区中央町-1-14
20m2(6.05坪)
110,000円(税込)
- 岡山市北区伊島町の築浅テナントです。築2年目なので外観内観ともに非常に綺麗で県道沿いに位置するため視認性も高く、カフェ喫茶や飲食店に非常におススメです。是非お気軽にお問い合わせください。
-

岡山県岡山市北区伊島町1-2
33.78m2(10.22坪)
77,000円(税込)
- 柳町2丁目テナントはコインパーキングも近隣にありとても目立つテナントです。
-

岡山県岡山市北区柳町2-2-2
57.75m2(17.47坪)
110,000円(税込)
お急ぎの方はお電話からお気軽にどうぞ!
086-230-5667 営業時間 / 10:00~18:00 定休日 / 日・祝

086-230-5667

















086-230-5667