情報更新日:2025年11月12日/広告有効期限:2025年12月31日
表示閲覧回数(過去30日間):39
お急ぎの方はお電話からお気軽にどうぞ!
086-230-5667 営業時間 / 10:00~18:00 定休日 / 日・祝
>物件詳細情報
| 基本情報 | |
|---|---|
| 物件番号 | 10007805819 |
| 店舗形態 | 事務所, 店舗(飲食店可) |
| オススメ業種 | |
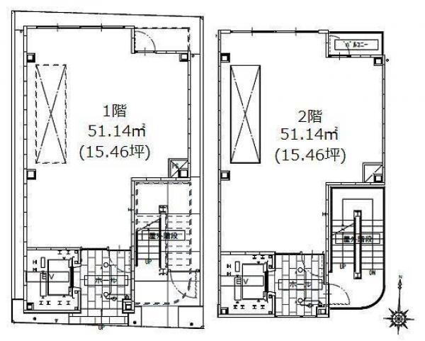
| 物件名 | GINGAビル |
| 物件の状態 | 建設中 |
| 引越し時期 | 相談 |
| 契約形態と期間 |
普通契約期間:2年間 |
| 所在地・交通 | |
|---|---|
| 所在地 | 岡山県岡山市北区田町2-14-113 |
| 交 通1 | 岡山電軌清輝橋線新西大寺町筋駅 徒歩2分 |
| 交 通2 | - |
| 賃料 | |
|---|---|
| 賃 料 | 550,000円(税込) |
| 敷 金 |
3ヶ月 |
| 共益費・管理費 | 11,000円(税込) |
| 礼 金 | 1ヶ月 |
| その他 | |
|---|---|
| 備考 | |
| 建物 | |
|---|---|
| 建物構造 | プレキャストコンクリート造 |
| 建物階建て |
地上3階 |
| 施工年月 | 2025(平成37)年 12月 |
| 募集物件の階数 | 地上 1階 |
| 契約面積 | 102.28m2(30.94坪) |
| 設備 | |
|---|---|
| 水道 | 公営 |
| 下水道 | 公共下水 |
| 駐車場 | |
|---|---|
| 状 況 | 近隣 |
| 取引情報 | |
|---|---|
| 取引態様 | 媒介 |
| 客付 | 不可 |
この物件をチェックした人はこんな物件も見ています
- 岡山市役所まで徒歩約11分! 賃料も抑えれる少人数での事務所にいかがでしょうか!

岡山県岡山市北区清輝橋1-5-12
33.24m2(10.06坪)
52,800円(税込)
- 共用部、光インターネット対応、インターネット無料、防犯カメラあり、インターホンあり、事務所に最適な物件ではないでしょうか?150Mの場所にコンビニもあり、大変便利です。ぜひお問合せ下さい。

岡山県岡山市北区大元2-4-3
60.50m2(18.30坪)
99,000円(税込)
- 大元駅近くのオフィス街。駅やバスなどの交通も充実している好立地な物件です。

岡山県岡山市北区西古松1-12-29
58.38m2(17.66坪)
97,130円(税込)
- JR山陽本線、岡山駅から徒歩約8分。内覧などお気軽にお問合せください。

岡山県岡山市北区中央町-7-13
52.80m2(15.97坪)
220,000円(税込)
- JR赤穂線、西大寺駅から徒歩約17分。倉庫付事務所のテナントになります。お問合せお待ちしております。

岡山県岡山市東区西大寺中野-85-6
146.88m2(44.43坪)
187,000円(税込)
今日チェックした物件
お急ぎの方はお電話からお気軽にどうぞ!
086-230-5667 営業時間 / 10:00~18:00 定休日 / 日・祝

086-230-5667













086-230-5667