情報更新日:2025年08月18日/広告有効期限:2025年10月31日
表示閲覧回数(過去30日間):41
お急ぎの方はお電話からお気軽にどうぞ!
086-230-5667 営業時間 / 10:00~18:00 定休日 / 日・祝
>物件詳細情報
| 基本情報 | |
|---|---|
| 物件番号 | 10007805652 |
| 店舗形態 | 事務所 |
| オススメ業種 | 事務所 |
| 物件名 | 柳町ビル4F |
| 物件の状態 | 空き |
| 引越し時期 | 2025(平成37)年08月下旬 |
| 契約形態と期間 | |
| 所在地・交通 | |
|---|---|
| 所在地 | 岡山県岡山市北区柳町1-12-1 |
| 交 通1 | 山陽本線岡山駅 徒歩13分 |
| 交 通2 | - |
| 賃料 | |
|---|---|
| 賃 料 | 204,223円(税込) |
| 敷 金 |
2,560,800円 |
| 共益費・管理費 | 77,464円(税込) |
| その他月額費用 1 | 外看板使用料 11,000円(税込) |
| その他 | |
|---|---|
| 備考 | 機械式屋根駐車場、1台/月額22000円。駐車場を借り上げる場合、敷金が月額費用の3か月分必要。 |
| 建物 | |
|---|---|
| 建物構造 | 鉄骨鉄筋コンクリート造 |
| 建物階建て |
地上8階 |
| 施工年月 | 1989(平成元年)年 03月 |
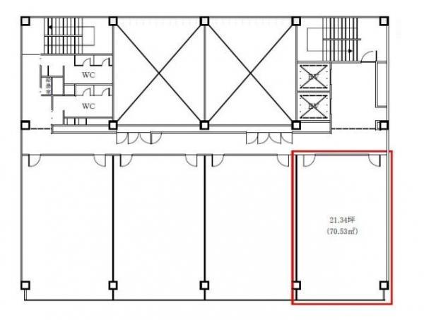
| 募集物件の階数 | 地上 4階 401号室 |
| 契約面積 | 70.53m2(21.34坪) |
| 駐車場 | |
|---|---|
| 状 況 | 空有 |
| 駐車料金 | 22,000円(税込) |
| 取引情報 | |
|---|---|
| 取引態様 | 媒介 |
| 客付 | 不可 |
この物件をチェックした人はこんな物件も見ています
- 交通アクセスの良い岡山市の副都心、今地区のオフィス街で2階の広い好物件が登場。大変おすすめです。

岡山県岡山市北区今1-11-9
118.02m2(35.70坪)
196,350円(税込)
- 交通アクセスの良い岡山市の副都心、今地区のオフィス街で2階の広い好物件が登場。大変おすすめです。

岡山県岡山市北区今1-11-9
127.27m2(38.50坪)
211,750円(税込)
- JR山陽本線、岡山駅から徒歩約18分! 商店街のテナントです。業種、用途などお気軽にお問い合わせください。

岡山県岡山市北区表町2-5-40
24.92m2(7.54坪)
110,000円(税込)
- 全フロア+屋上使えます◎内装改装自由自在! 1棟貸しテナント!事務所・販売・飲食店・ジム・エステ・他 業種相談可能!飲食店可能です!住居付店舗です!

岡山県岡山市北区田町2-5-1
180.08m2(54.47坪)
230,000円(税込)
- 魅力的な間取りで収納スペースもあり大変便利です。お気軽にお問い合わせください♪

岡山県岡山市北区中央町-7-24
80.93m2(24.48坪)
275,000円(税込)
今日チェックした物件
- 岡山市北区伊島町の築浅テナントです。築2年目なので外観内観ともに非常に綺麗で県道沿いに位置するため視認性も高く、カフェ喫茶や飲食店に非常におススメです。是非お気軽にお問い合わせください。
-

岡山県岡山市北区伊島町1-2
33.78m2(10.22坪)
77,000円(税込)
- 岡山市南区福島にあるガレージハウス物件です。築浅で外装、内装ともに非常にキレイです。周辺にはコンビニ、スーパー、飲食店、ホームセンターなど多数の店舗があり大変便利です。是非お気軽にお問い合わせください。
-

岡山県岡山市南区福島3-2-15
58.51m2(17.70坪)
118,800円(税込)
- 岡山市中区国富にある物件で、広々108㎡!専有部分にトイレ、キッチン、給湯、エアコンと充実の設備。近隣にはコンビニ、銀行など便利な生活施設が多数あります。ぜひお気軽にお問い合わせください。
-

岡山県岡山市中区国富1-14-2
108.63m2(32.86坪)
165,000円(税込)
- 北長瀬駅から、徒歩22分。約23坪、1Fのテナントです。内覧など、お待ちしております。
-

岡山県岡山市北区田中-140-115
77.84m2(23.55坪)
176,000円(税込)
- 地下1階部分、23.03坪の貸店舗です!お気軽にお問合せ下さい。
-

岡山県岡山市北区表町1-11-38
76.14m2(23.03坪)
380,000円(税込)
お急ぎの方はお電話からお気軽にどうぞ!
086-230-5667 営業時間 / 10:00~18:00 定休日 / 日・祝

086-230-5667


















086-230-5667