情報更新日:2025年08月18日/広告有効期限:2025年10月31日
表示閲覧回数(過去30日間):18
お急ぎの方はお電話からお気軽にどうぞ!
086-230-5667 営業時間 / 10:00~18:00 定休日 / 日・祝
>物件詳細情報
| 基本情報 | |
|---|---|
| 物件番号 | 10007805662 |
| 店舗形態 | 事務所, 店舗 |
| オススメ業種 | 事務所, 物販関係, 美容関係, サービス業 |
| 物件名 | エディフィシオ横内1F |
| 物件の状態 | 入居中 |
| 引越し時期 | 2025(平成37)年10月上旬 |
| 契約形態と期間 | |
| 所在地・交通 | |
|---|---|
| 所在地 | 岡山県岡山市北区内山下1-9-15 |
| 交 通1 | 山陽本線岡山駅 徒歩24分 |
| 交 通2 | - |
| 賃料 | |
|---|---|
| 賃 料 | 165,000円(税込) |
| 敷 金 |
敷金未定 |
| その他 | |
|---|---|
| 備考 | 敷金は、業種によって金額を設定致します。事務所前駐車場2台賃料込 |
| 建物 | |
|---|---|
| 建物構造 | 鉄骨造 |
| 建物階建て |
地上10階 |
| 施工年月 | 1998(平成10)年 10月 |
| 募集物件の階数 | 地上 1階 102号室 |
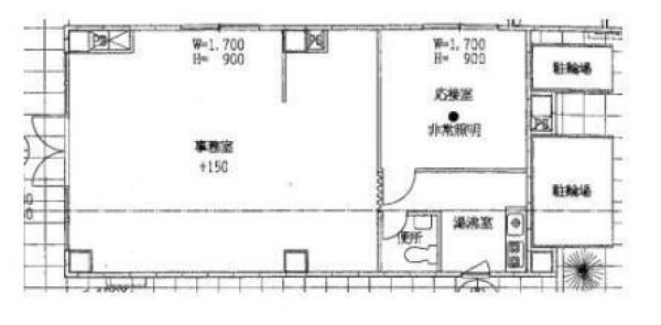
| 契約面積 | 60.70m2(18.36坪) |
| 駐車場 | |
|---|---|
| 状 況 | 空有 |
| 空き台数 | 2台 |
| 取引情報 | |
|---|---|
| 取引態様 | 媒介 |
| 客付 | 不可 |
この物件をチェックした人はこんな物件も見ています
- 交通アクセスの良い岡山市の副都心、今地区のオフィス街で2階の広い好物件が登場。大変おすすめです。

岡山県岡山市北区今1-11-9
118.02m2(35.70坪)
196,350円(税込)
- 交通アクセスの良い岡山市の副都心、今地区のオフィス街で2階の広い好物件が登場。大変おすすめです。

岡山県岡山市北区今1-11-9
127.27m2(38.50坪)
211,750円(税込)
- JR山陽本線、岡山駅から徒歩約18分! 商店街のテナントです。業種、用途などお気軽にお問い合わせください。

岡山県岡山市北区表町2-5-40
24.92m2(7.54坪)
110,000円(税込)
- 全フロア+屋上使えます◎内装改装自由自在! 1棟貸しテナント!事務所・販売・飲食店・ジム・エステ・他 業種相談可能!飲食店可能です!住居付店舗です!

岡山県岡山市北区田町2-5-1
180.08m2(54.47坪)
230,000円(税込)
- 魅力的な間取りで収納スペースもあり大変便利です。お気軽にお問い合わせください♪

岡山県岡山市北区中央町-7-24
80.93m2(24.48坪)
275,000円(税込)
今日チェックした物件
お急ぎの方はお電話からお気軽にどうぞ!
086-230-5667 営業時間 / 10:00~18:00 定休日 / 日・祝

086-230-5667













086-230-5667