情報更新日:2025年08月18日/広告有効期限:2025年10月31日
表示閲覧回数(過去30日間):18
お急ぎの方はお電話からお気軽にどうぞ!
086-230-5667 営業時間 / 10:00~18:00 定休日 / 日・祝
>物件詳細情報
| 基本情報 | |
|---|---|
| 物件番号 | 10007805743 |
| 店舗形態 | 事務所, 店舗 |
| オススメ業種 | |
| 物件名 | NSD出石町 |
| 物件の状態 | 空き |
| 引越し時期 | 相談 |
| 契約形態と期間 |
普通契約期間:2年間 |
| 所在地・交通 | |
|---|---|
| 所在地 | 岡山県岡山市北区出石町1-11-8 |
| 交 通1 | 岡山電軌東山本線柳川駅 徒歩16分 |
| 交 通2 | - |
| 賃料 | |
|---|---|
| 賃 料 | 110,000円(税込) |
| 敷 金 |
2ヶ月 |
| 礼 金 | 1ヶ月 |
| その他 | |
|---|---|
| 備考 | |
| 建物 | |
|---|---|
| 建物構造 | 木造 |
| 建物階建て |
地上2階 |
| 募集物件の階数 | 地上 1階 |
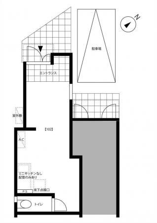
| 契約面積 | 20.08m2(6.07坪) |
| 設備 | |
|---|---|
| 水道 | 公営 |
| ガス | LPG |
| エレベータ | 無 |
| エアコン | 有り/個別 |
| トイレ | 有/専用 |
| 給湯室 | 有/専用 |
| 照明設備 | 有 |
| 駐車場 | |
|---|---|
| 状 況 | 空有 |
| 駐車料金 | 11,000円(税込) |
| 空き台数 | 1台 |
| 取引情報 | |
|---|---|
| 取引態様 | 媒介 |
| 客付 | 不可 |
この物件をチェックした人はこんな物件も見ています
- 交通アクセスの良い岡山市の副都心、今地区のオフィス街で2階の広い好物件が登場。大変おすすめです。

岡山県岡山市北区今1-11-9
127.27m2(38.50坪)
211,750円(税込)
- 交通アクセスの良い岡山市の副都心、今地区のオフィス街で2階の広い好物件が登場。大変おすすめです。

岡山県岡山市北区今1-11-9
118.02m2(35.70坪)
196,350円(税込)
- JR山陽本線、岡山駅から徒歩約18分! 商店街のテナントです。業種、用途などお気軽にお問い合わせください。

岡山県岡山市北区表町2-5-40
24.92m2(7.54坪)
110,000円(税込)
- 全フロア+屋上使えます◎内装改装自由自在! 1棟貸しテナント!事務所・販売・飲食店・ジム・エステ・他 業種相談可能!飲食店可能です!住居付店舗です!

岡山県岡山市北区田町2-5-1
180.08m2(54.47坪)
230,000円(税込)
- 魅力的な間取りで収納スペースもあり大変便利です。お気軽にお問い合わせください♪

岡山県岡山市北区中央町-7-24
80.93m2(24.48坪)
275,000円(税込)
今日チェックした物件
お急ぎの方はお電話からお気軽にどうぞ!
086-230-5667 営業時間 / 10:00~18:00 定休日 / 日・祝

086-230-5667

















086-230-5667