情報更新日:2025年11月07日/広告有効期限:2025年12月31日
表示閲覧回数(過去30日間):23
お急ぎの方はお電話からお気軽にどうぞ!
086-230-5667 営業時間 / 10:00~18:00 定休日 / 日・祝
>物件詳細情報
| 基本情報 | |
|---|---|
| 物件番号 | 10007805813 |
| 店舗形態 | 事務所, 店舗 |
| オススメ業種 | |
| 物件名 | 岡山柳町ビル |
| 物件の状態 | 空き |
| 引越し時期 | 即 |
| 契約形態と期間 |
普通契約期間:2年間 |
| 所在地・交通 | |
|---|---|
| 所在地 | 岡山県岡山市北区柳町1-12-1 |
| 交 通1 | 山陽本線岡山駅 徒歩13分 |
| 交 通2 | - |
| 賃料 | |
|---|---|
| 賃 料 | 202,309円(税込) |
| 敷 金 |
3ヶ月 |
| 共益費・管理費 | 76,738円(税込) |
| その他 | |
|---|---|
| 備考 | ・駐車場の敷金は月額費用の3ヶ月分と成ります。 ・外看板使用料:5,500円(税込) |
| 建物 | |
|---|---|
| 建物構造 | 鉄骨鉄筋コンクリート造 |
| 建物階建て |
地上8階 |
| 施工年月 | 1989(平成元年)年 03月 |
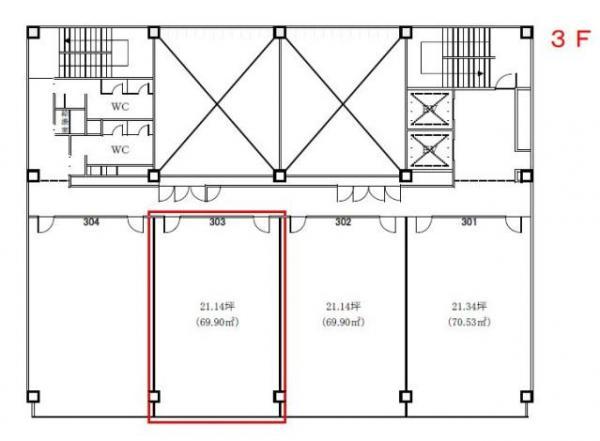
| 募集物件の階数 | 地上 3階 303号室 |
| 契約面積 | 69.90m2(21.14坪) |
| 駐車場 | |
|---|---|
| 状 況 | 空有 |
| 駐車料金 | 22,000円(税込) |
| 敷 金 | 3ヶ月 |
| 取引情報 | |
|---|---|
| 取引態様 | 媒介 |
| 客付 | 不可 |
この物件をチェックした人はこんな物件も見ています
- 交通アクセスの良い岡山市の副都心、今地区のオフィス街で2階の広い好物件が登場。大変おすすめです。

岡山県岡山市北区今1-11-9
118.02m2(35.70坪)
196,350円(税込)
- 交通アクセスの良い岡山市の副都心、今地区のオフィス街で2階の広い好物件が登場。大変おすすめです。

岡山県岡山市北区今1-11-9
127.27m2(38.50坪)
211,750円(税込)
- 大元駅まで500Mの利便性の高い場所に位置する物件です。2F16.5坪!!ぜひ一度お問合せください。

岡山県岡山市北区西古松1-12-1
54.55m2(16.50坪)
90,750円(税込)
- 立地の良いテナント人気エリア!1階でとても便利な25.64坪の物件に空きが出ました!

岡山県岡山市北区今6-19-8
84.76m2(25.64坪)
141,020円(税込)
- 駐車場付きロードサイド事務所です。接道からの視認性が高く販促効果第です。近隣にはコンビニ、ドラッグストア、スーパーなど利便性の高い施設が多数あり大変おススメの物件です。内覧はいつでも可能ですのでお気軽にお問い合わせください。

岡山県岡山市中区藤原西町2-8-26
143.02m2(43.26坪)
249,700円(税込)
今日チェックした物件
お急ぎの方はお電話からお気軽にどうぞ!
086-230-5667 営業時間 / 10:00~18:00 定休日 / 日・祝

086-230-5667














086-230-5667